Llámenos : +34 933 19 79 79
  • Search by criteria
  • Tipo inmueble
  • Ubicación
  • Superficie
  • Habitaciones
  • Precio
  • Extras
Ático con gran terraza en la zona más mágica del Gótico

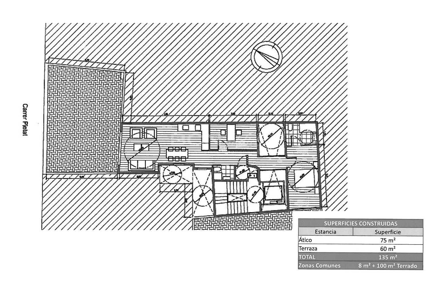
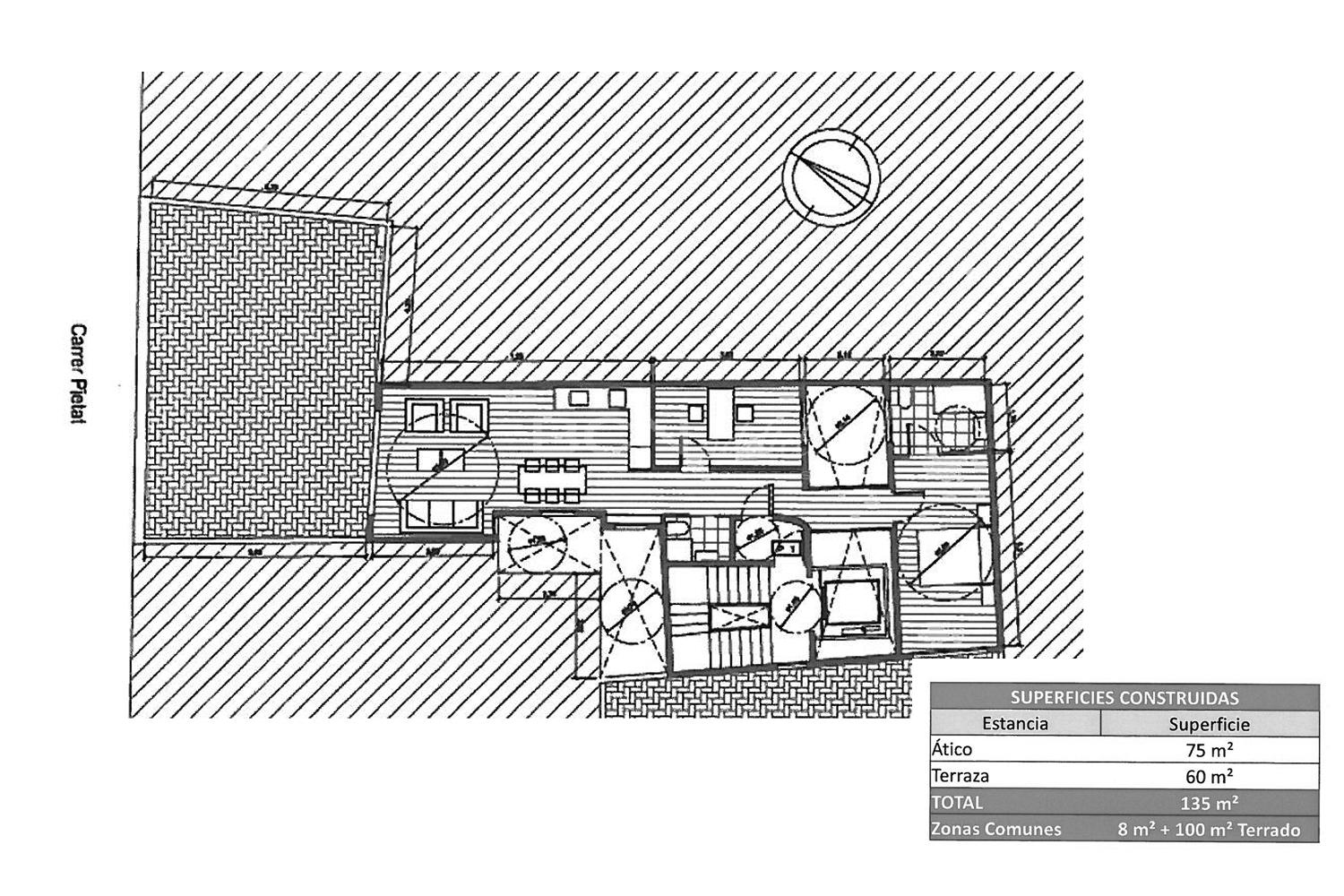
El edificio está situado en el emblemático Barrio Gótico de Barcelona, al lado de los restos romanos del templo de Augusto, tiene vistas a la Catedral de Santa Maria del Mar. Ha sido totalmente rehabilitado. Consta de superficie de 1725m2, dividida entre 11 viviendas, todas a reformar. Además, dispone de terraza comunitaria de 100m2.

Se entregarán unidades registrales independientes y totalmente reformadas.

La vivienda, situada en la última planta, dispone de una gran terraza privada con acceso al salón-comedor y cocina, dando la sensación de que la terraza se integra con la vivienda. En el otro extremo se sitúa la suite (habitación más baño) que está iluminada gracias al patio que junto con la suite forma estudio. El aseo se ubica junto a vestidor pequeño.

Gracias a distribución y altura favorables la vivienda es muy luminosa y tranquila y ofrece vistas espectaculares a la zona más mágica del Gótico.

Acabados de calidad (se entrega la memoria de calidades bajo pedido).

Se ubica a 5 minutos del mar, cerca de transporte público de todo tipo y junto a una de las vías principales.

 

Equipamientos

Aire Acondicionado

Ascensor

Calefaccion

Cocina integrada

Terraza

Ático con gran terraza en la zona más mágica del Gótico

1 Habitaciones · 95 m2 · 927 000 €

REF R-242
Ciudad Barcelona
ÁreaGòtic
Año de construcción2015
Habitaciones 1
Baños 2

Terraza m2

60

Tipo de calefacción

Bomba de calor/frío

Estado

Excelente

Suelo

Madera

ORGANIZAR UNA VISITA

Enviar

o por teléfono: : +34 933 19 79 79

Enviar ficha de piso a mi mail

Enviar

Sobre nosotros

BCN addict es una agencia inmobiliaria de Barcelona destinada a extranjeros que...

Saber más

Síguenos

Encuentra toda nuestra actualidad del universo inmobiliario