Llámenos : +34 933 19 79 79
  • Search by criteria
  • Tipo inmueble
  • Ubicación
  • Superficie
  • Habitaciones
  • Precio
  • Extras
Casa con terraza a 5 minutos del mar

Edificio de nueva construcción y de alto standing situado a pocos metros de la Rambla del Poblenou y a cinco minutos caminando del mar, en una calle peatonal y muy tranquila. La finca está dividida en dos casas de tres alturas más terraza.

Ha sido diseñada por un famoso arquitecto catalán que ha optado por un estilo moderno y funcional, cuidando al detalle el máximo aprovechamiento del espacio y la luz en cada estancia y apostando por un juego de volúmenes a diferente escala.

Es muy luminosa ya que tiene fuentes de entrada de luz natural tanto por la parte delantera del edificio, donde la pared principal es una elegante cristalera, como por la parte de detrás dónde hay unas grandes ventanas que dan a un patio muy soleado.

Los techos de la primera planta son muy altos, lo que ha permitido la creación de una estancia a un nivel superior; toda la casa está equipada con calefacción y aire acondicionado.

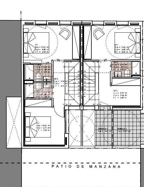
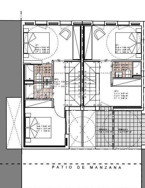
La distribución de la primera planta está compuesta por un espacioso salón, una cocina de concepto abierto, un baño grande y un lavadero. A través de una escalera accedemos fácilmente al espacio superior donde se encuentran una habitación doble, un baño y una zona abierta a la cual se puede dar múltiples funcionalidades.

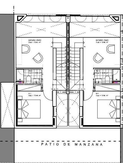
En la segunda planta existen dos habitaciones dobles y dos baños, uno de ellos en suite. En el tejado se encuentra una terraza privada.

La superficie total interior es de 120m2.

 

 

Equipamientos

Aire Acondicionado

balcón

Calefaccion

Cocina integrada

Patio

Terraza

Casa con terraza a 5 minutos del mar

3 Habitaciones · 120 m2 · 630 000 €

REF Z-2051
Ciudad Barcelona
ÁreaPoblenou
Año de construcción2017
Habitaciones 3
Baños 4

Terraza m2

40

Tipo de calefacción

Bomba de calor/frío

Estado

Excelente

Suelo

Madera

ORGANIZAR UNA VISITA

Enviar

o por teléfono: : +34 933 19 79 79

Enviar ficha de piso a mi mail

Enviar

Sobre nosotros

BCN addict es una agencia inmobiliaria de Barcelona destinada a extranjeros que...

Saber más

Síguenos

Encuentra toda nuestra actualidad del universo inmobiliario