Llámenos : +34 933 19 79 79
  • Search by criteria
  • Tipo inmueble
  • Ubicación
  • Superficie
  • Habitaciones
  • Precio
  • Extras
Magnífico proyecto de rehabilitación integral de finca modernista con dos piscinas y zona ajardinada

Ambiciosa transformación de un edificio modernista a escasos metros del mercado de Sant Antoni destinada a ser convertida en 15 viviendas de lujo en Barcelona.
La rehabilitación integral de esta antigua fábrica histórica de licores edificada en 1909 por August Font i Carreras combina a la perfección tradición y modernidad.
La fachada modernista delicadamente trabajada y restaurada con sus tres ejes verticales, arcos de medio punto y esgrafiados florales alberga en su interior un paradisiaco patio ajardinado de 145m2 con piscina, auténtico oasis de privacidad que nos permite ofrecer una propuesta única del sector de lujo en Barcelona. En la azotea encontramos otra zona comunitaria de 116m2 con piscina y una impresionante vista del skyline de la ciudad.
El diseño de las unidades ha sido cuidadosamente pensado por un conocido estudio de arquitectura, creando distribuciones modernas y diáfanas que aprovechan y subliman los espacios donde se entremezclan perfectamente los elementos clásicos de la arquitectura barcelonesa como volta catalana, mosaicos originales de época y techos altos con todas las comodidades de la vida moderna.
La tipología de las unidades disponibles es variada y permite ajustarse a varios estilos de vida, manteniendo como punto de unión el interés por la belleza y lo auténtico.
Disponemos de plantas bajas dúplex con generosas terrazas, viviendas con vistas a calle o al patio ajardinado de 1 o 2 dormitorios, así como áticos con terraza privada.
Su ubicación en el corazón de uno de los barrios más solicitados y céntricos, rodeado por puntos de interés histórico como el mercado de Sant Antoni, el monasterio de Sant Pau o el Convento de Sant Antoni Abat y a dos pasos de la impresionante oferta gastronómica de la calle Parlament convierten esta propiedad única para los amantes de lo bello y lo bueno.

Equipamientos

Aire Acondicionado

Ascensor

balcón

Cocina integrada

Domótica

Jardín

Piscina

Sótano

Terraza

Magnífico proyecto de rehabilitación integral de finca modernista con dos piscinas y zona ajardinada

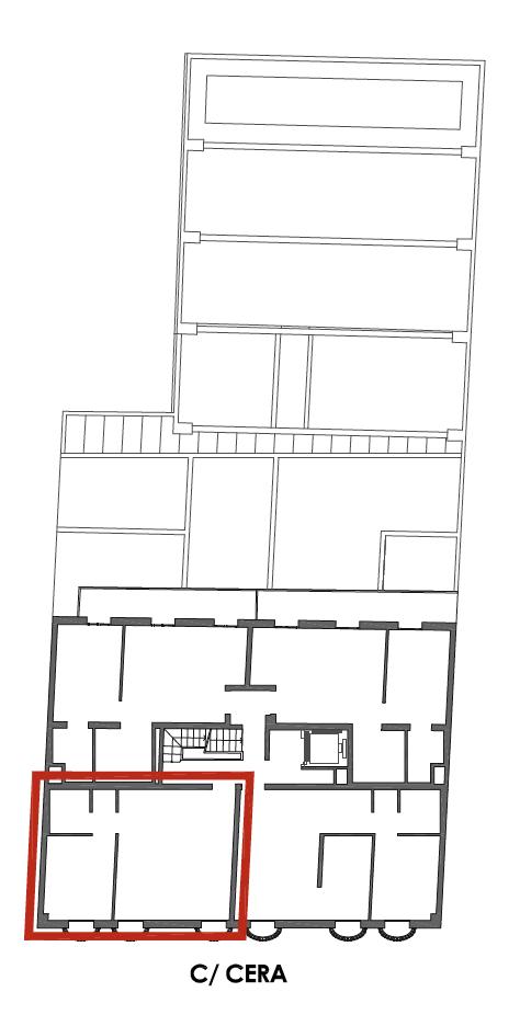
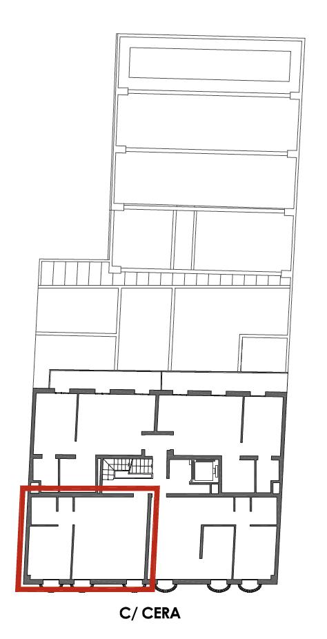
1 Habitaciones · 58 m2 · 326 000 €

REF Z-2054
Ciudad Barcelona
ÁreaSant Antoni
Año de construcción1909
Habitaciones 1
Baños 1

Terraza m2

3

Tipo de calefacción

Bomba de calor/frío

Estado

Excelente

Suelo

Mixto Madera - Hidráulico

Techo

Beauvais catalana

ORGANIZAR UNA VISITA

Enviar

o por teléfono: : +34 933 19 79 79

Enviar ficha de piso a mi mail

Enviar

Sobre nosotros

BCN addict es una agencia inmobiliaria de Barcelona destinada a extranjeros que...

Saber más

Síguenos

Encuentra toda nuestra actualidad del universo inmobiliario