Llámenos : +34 933 19 79 79
  • Search by criteria
  • Tipo inmueble
  • Ubicación
  • Superficie
  • Habitaciones
  • Precio
  • Extras
Precioso piso modernista luminoso con terraza y balcones

La propiedad está idealmente ubicada en el corazón del distrito del Eixample, a pocos minutos de la calle Enric Granados y la Plaza Catalunya. El piso está rodeado de tiendas, boutiques, restaurantes locales y bares de moda. También está cerca del transporte público: autobuses, trenes de cercanías de “Paseo de Gracia y Plaza Catalunya y varias líneas de metro como L1 L2 L3 y L4.

El piso se encuentra en un hermoso edificio modernista de 1893 con ascensor. La bonita fachada del edificio ofrece molduras bien conservadas alrededor de aperturas y puertas ventanas con balcones de hierro. Las zonas comunes también muestran dibujos y molduras modernistas en la entrada y la escalera.

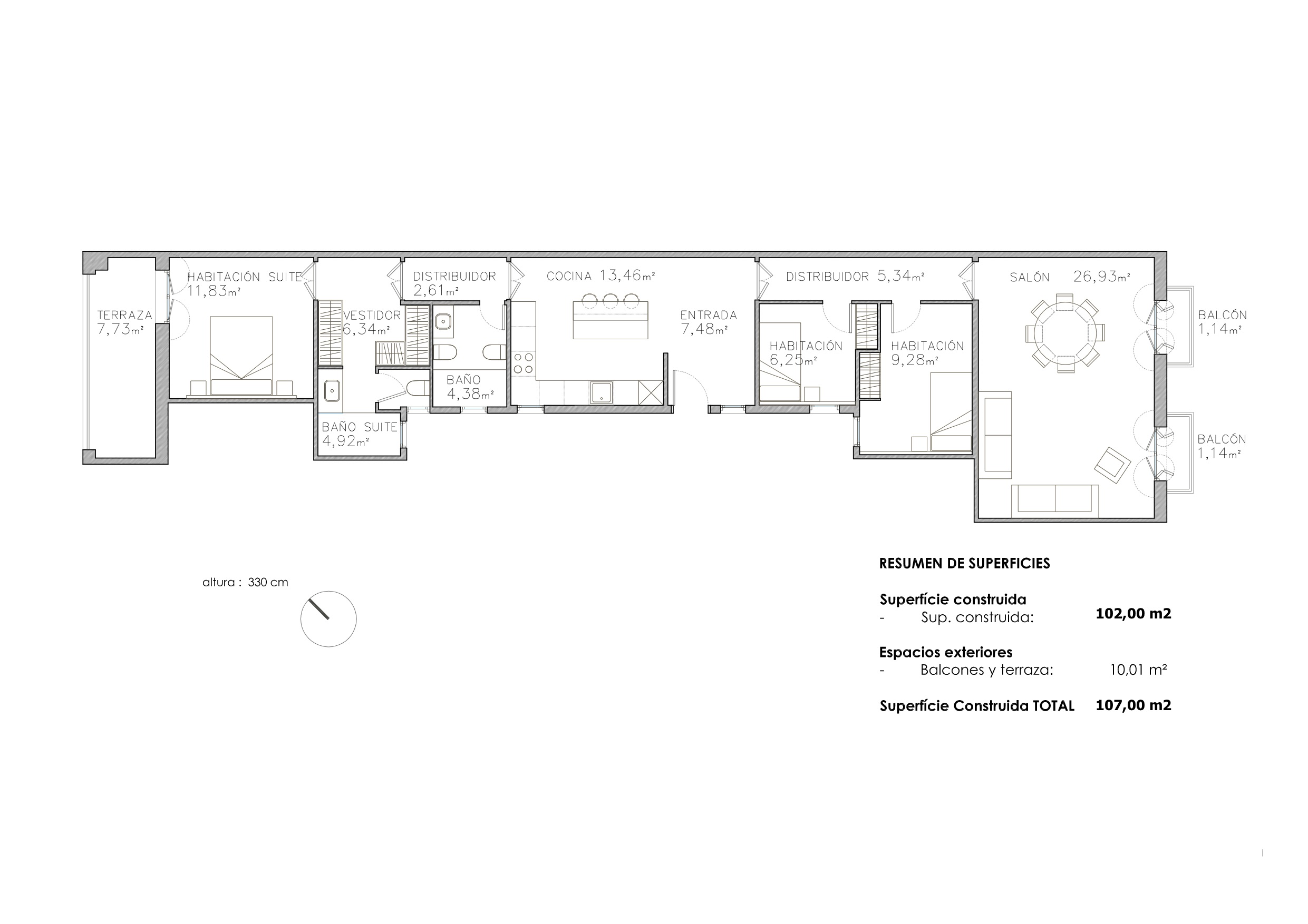
La propiedad a dos vientos, de 102 m2 construidos interiores, se encuentra en la 3era planta de un edificio de 6 plantas. Presenta espacios luminosos con techos altos y ofrece elementos históricos en todas las estancias. Una terraza trasera de 7,5 m2 y 2 balcones por el lado de la calle, ofrecen espacios exteriores variados. La propiedad ofrece excelentes acabados interiores: caldera a gas para radiadores y agua caliente, ventanas de doble acristalamiento, combinación de baldosas hidráulicas y parquet de madera y muebles empotrados en la cocina y el baño.

El piso está en buen estado, aunque podría beneficiarse de una actualización en algunas habitaciones. Esta propiedad modernista combina elementos originales como suelos hidráulicos, techos artesonados, techos de ladrillo visto y carpintería original, junto con diseño interior y materiales contemporáneos. La vivienda se distribuye actualmente con 3 dormitorios y 2 baños. El dormitorio principal se beneficia de mucha privacidad, ya que se encuentra en la parte trasera de la propiedad. Ofrece un dressing y un cuarto de baño privado con ducha y ventanas. Además, cuenta con acceso a una terraza de 7,5 m2. El segundo baño adyacente también cuenta con ducha y ventilación natural desde una ventana en el patio interior. Las otras 2 habitaciones individuales disponen de armario empotrados y ventana al patio interior. La cocina ofrece elegantes y modernos muebles empotrados con todos los electrodomésticos necesarios (nevera, congelador, lavavajillas, horno, vitrocerámica, extractor). El amplio salón comedor está orientado al sureste y se abre por el lado calle con 2 balcones.

El piso está en buen estado en general. Es una buena oportunidad para adquirir un piso modernista en la mejor ubicación del Eixample.

 

Equipamientos

Armarios empotrados

Ascensor

balcón

Cocina integrada

exterior

Patio

Terraza

Precioso piso modernista luminoso con terraza y balcones

3 Habitaciones · 107 m2 · 610 000 €

REF R-548
Ciudad Barcelona
ÁreaEixample
Año de construcción1893
Habitaciones 3
Baños 2

Terraza m2

10

Tipo de calefacción

Gas

Estado

Bueno

Suelo

Mixto Madera - Hidráulico

Techo

Molduras

ORGANIZAR UNA VISITA

Enviar

o por teléfono: : +34 933 19 79 79

Enviar ficha de piso a mi mail

Enviar

Sobre nosotros

BCN addict es una agencia inmobiliaria de Barcelona destinada a extranjeros que...

Saber más

Síguenos

Encuentra toda nuestra actualidad del universo inmobiliario