Call us : +34 933 19 79 79
  • Search by criteria
  • Property Type
  • Location
  • Living area
  • Bedrooms
  • Price
  • Extras
Magnificent rehabilitation of a modernist building with two swimming pools and garden areas

Ambitious transformation of a modernist building a few meters from Sant Antoni market destined to be converted into 15 luxury apartments in Barcelona.

The integral rehabilitation of this old and historical liquor factory built in 1909 by August Font i Carreras is a perfect mix of tradition and modernity.

The modernist facade delicately worked and restored with its three vertical axes, arches and floral sketches blends inside a paradisiac landscaped yard of 145m2 with a swimming pool, an authentic private oasis unique in the luxury sector of Barcelona.

The rooftop has another community area of ​​116m2 with a swimming pool and an amazing view of the Barcelona skyline.

The design of the units have been carefully thought out by a famous architectural studio, classic elements of Barcelona's architecture, original period mosaics and high ceilings perfectly combined with new modern open-plan distributions and all the comforts you can imagine.

The typology of the units is varied and allows to adjust to different lifestyles, maintaining as a point of union the interest in beauty and authenticity.

This building has a basement floors with spacious storage units, the flats are overlooking the street or the garden, with one or two bedrooms as well as penthouses with private terraces.

Its location in the heart of one of the most sought after and central neighborhoods, surrounded by historical points of interest such as Sant Antoni Market, Sant Pau Monastery or Sant Antoni Abat Convent, a few steps away from the upcoming gastronomic hot spot of Barcelona, makes this property unique for those who enjoy beauty and quality lifestyle.

 

Equipments

Air conditionning

Elevator

balcony

Built-in Kitchen

Automation

Garden

Swimming Pool

Basement

Terrace

Magnificent rehabilitation of a modernist building with two swimming pools and garden areas

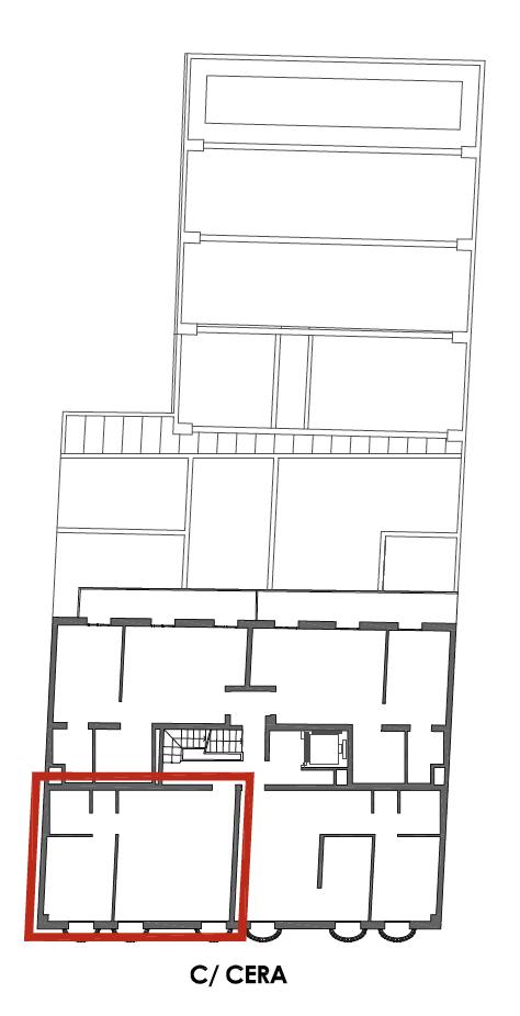
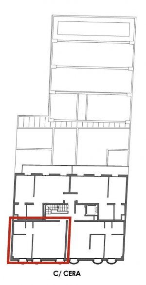
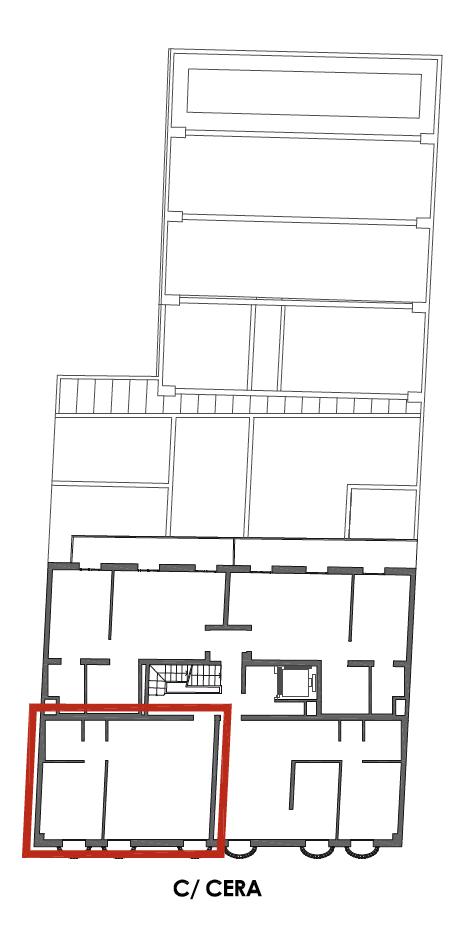
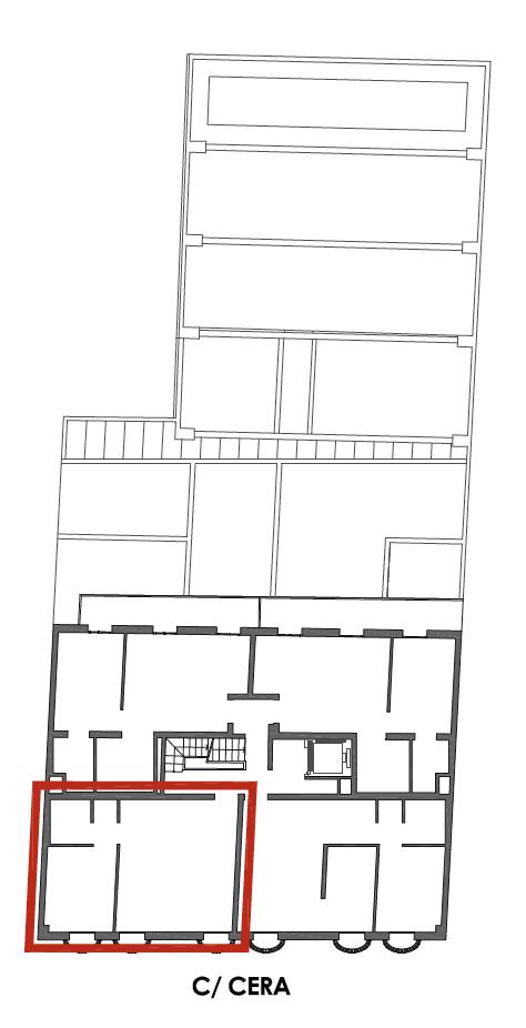
1 Bedrooms · 58 m2 · 326 000 €

REF Z-2054
City Barcelona
AreaSant Antoni
Year of construction1909
Bedrooms 1
Toilettes 1

Terrace sqm

3

Heating

Heat Pump

Condition

Excellent

Floor Type

Mix Wooden - Original

Ceiling Type

Original ceiling

SET AN APPOINTMENT

Send

or by phone: : +34 933 19 79 79

Send PDF file to my mail

Send

About us

BCN Addict is a Real Estate agency from Barcelona...

Learn more

Follow us

Find all the news of our Real Estate
universe