Call us : +34 933 19 79 79
  • Search by criteria
  • Property Type
  • Location
  • Living area
  • Bedrooms
  • Price
  • Extras
Planta Baja de diseño con Terraza de 50 metros

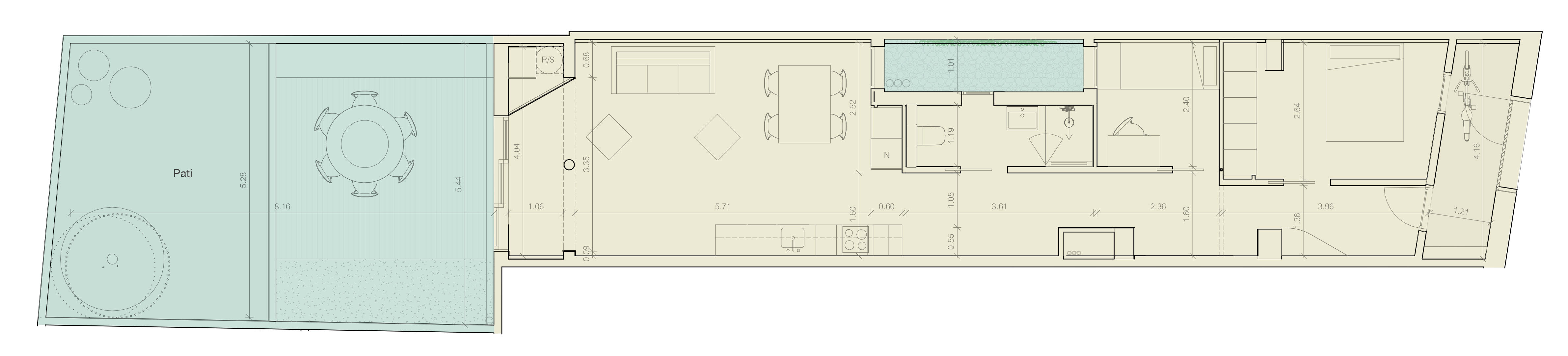
El piso se encuentra en un edificio de época de 1930 y está completamente renovado. Está ubicado en el corazón de les corts a dos pasos del METROPOLITAN, club de deporte. Situado en una calle tranquila en planta baja la propiedad está rodeada por una gran variedad de comodidades, tiendas y boutiques. Se beneficia de excelentes conexiones de transporte, a pocos minutos de la estación de Sants y del metro de les corts.

La construcción a dos vientos ofrece en el lado de la calle: una fachada saliendo al suroeste, mientras que la fachada trasera está orientada al este y mira hacia el patio.

La espaciosa y tranquila casa de 105 m2 está situada en la planta baja y cuenta con un diseño interior moderno. La cocina, sala de estar y comedor forman un espacio abierto y salen a través de amplias ventanas corredizas a. m2 de puertas de jardín privadas y sala de utilidad de. m2. La espaciosa área de recepción conduce a una habitación doble, un baño completo con ducha, WC separado y dos picas.

La propiedad ofrece excelentes acabados interiores: el piso está equipado con video portero, sistemas de luz empotrados, aire acondicionado (bomba de enfriamiento y calefacción), ventanas de doble acristalamiento con marco y persianas de aluminio, cocina y baño con muebles lacados y electrodomésticos integrados (incluyendo horno, placa, aireador, nevera, lavavajillas y microondas), combinación de suelo de baldosas y parquet, terraza con hoja de madera compuesta y armarios empotrados hechos a medida en las habitaciones.

Esta es una oportunidad única para adquirir una planta baja segura y amplia en el centro de les corts con su terraza privada.

Equipments

Air conditionning

Security system

Fitted wardrobes

Elevator

Heating

Built-in Kitchen

Automation

exterior

Garden

Patio

rehabilitacion_integral

Terrace

Planta Baja de diseño con Terraza de 50 metros

2 Bedrooms · 83 m2 · 380 000 €

REF Z-2113
City Barcelona
AreaLes Corts
Year of construction2020
Bedrooms 2
Toilettes 1

Terrace sqm

52

Heating

Heat Pump

Condition

Excellent

Floor Type

Tiles

SET AN APPOINTMENT

Send

or by phone: : +34 933 19 79 79

Send PDF file to my mail

Send

About us

BCN Addict is a Real Estate agency from Barcelona...

Learn more

Follow us

Find all the news of our Real Estate
universe