Appelez-nous : +34 933 19 79 79
  • Search by criteria
  • Type de biens
  • Emplacement
  • Superficie
  • Chambres
  • Prix
  • Extras
Fantastique appartement moderniste rénové dans immeuble classé

Les photos qui apparaissent ici correspondent à un appartement du même type déjà rénovée et vendue, situé à un étage supérieur du même immeuble. Le prix de vente inclut une renovation similaire.

La propriété est idéalement située dans le quartier recherché de l'Eixample de Barcelone au sixième étage dans un bâtiment ancient, à quelques minutes du Paseo Sant Joan et de la Plaza Tetuan, à proximité de sites emblématiques tels que l'Arc de triomphe et la plaza Urquinaona, L1, L2 et L4 et une grande variété d'infrastructures, de services et de magasins.

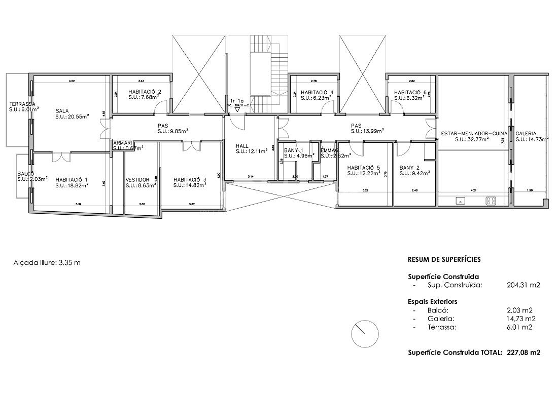
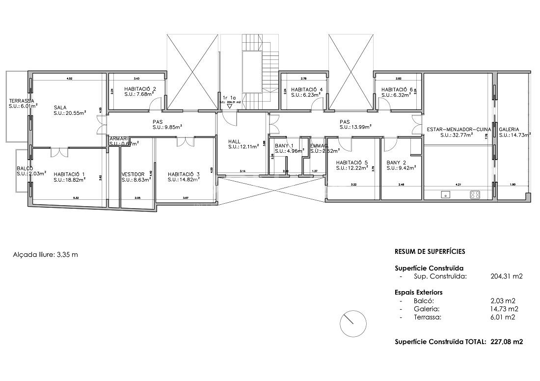
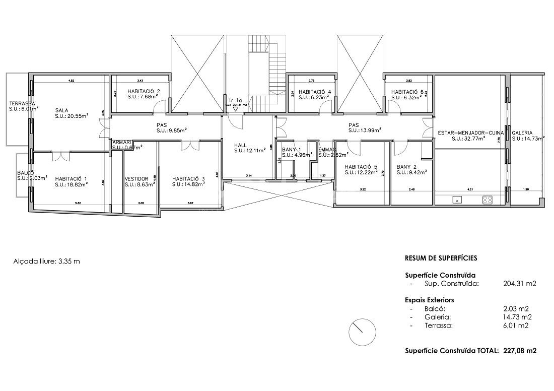
La propriété traversante de 227 m2 est située au deuxième étage d'un immeuble de 1936. La superbe façade de couleur grisâtre présente des colonnes, des moulures et des ornements en fer sur les balcons.

Le bâtiment classé dispose d'une entrée et d'une réception nobles avec des éléments modernistes tels que des sols en marbre, des moulures, des arches et des colonnes. La structure du bâtiment, le hall d'entrée, l'ascenseur et les escaliers sont en bon état.

L'appartement sera entièrement rénové et l'acheteur pourra participer à la distribution et sélectionner certaines finitions. La réforme associera de nombreux éléments modernistes originaux exquis, (tels que de magnifiques sols en mosaïque, les plafonds à voûte catalans, les murs en briques et les huisseries originales) avec de nouveaux matériaux et des installations de qualité de marques renommées (telles que Bosch. Grohe et Fujitsu).

Cet appartement présente des espaces de vie lumineux et contemporains : un espace ouvert de 64 m2 comprenant la cuisine donnant sur le salon salle à manger avec de grandes ouvertures sur la galerie de 15 m2 orientée au sud. L'appartement dispose également de trois chambres doubles bien proportionnées (deux extérieures sur la rue avec balcons et une autre intérieure) avec des armoires encastrées sur mesure et trois salles de bains modernes avec douches (2 ensuite). La propriété dispose également d'un bureau, d'une buanderie et d'un débarras.

L'appartement est équipé de systèmes d'éclairage intégrés avec variateur, d'un système de climatisation à double fonction (chaud froid) par conduits, d'un chauffe-eau pour l'eau chaude, de fenêtres à double vitrage, de meubles de salle de bains et d'appareils de la cuisine: hotte, table de cuisson, four, lave-vaisselle et frigo.

C'est une excellente occasion d'acquérir un appartement clé en main de trois chambres de caractère dans l'un des endroits les plus recherchés du quartier de l'Eixample.

Équipements

Ascenseur

balcon

Chauffage

Cuisine intégrée

Terrasse

Fantastique appartement moderniste rénové dans immeuble classé

6 Chambres · 204 m2 · 1 380 000 €

REF R-349
Ville Barcelona
AreaEixample
Année de construction1875
Chambres 6
Salles de bains 2

Terrasse m2

23

Type de chauffage

Gas

État

Bon

Sol

Mix Wood - Carreaux-ciments

Plafond

Moulures

J'ORGANISE MA VISITE

Envoyer

ou par téléphone : : +34 933 19 79 79

Envoyer les informations à mon email

Envoyer

À propos de nous

BCNaddict est une agence immobilière implantée à Barcelone, destinée aux…

En savoir plus

Suivez-nous

Retrouvez toute notre actualité sur l'univers de l'immobilier