Appelez-nous : +34 933 19 79 79
  • Search by criteria
  • Type de biens
  • Emplacement
  • Superficie
  • Chambres
  • Prix
  • Extras
Magnífico proyecto de rehabilitación integral de finca modernista con dos piscinas y zona ajardinada

Ambiciosa transformación de un edificio modernista a escasos metros del mercado de Sant Antoni destinada a ser convertida en 15 viviendas de lujo en Barcelona.
La rehabilitación integral de esta antigua fábrica histórica de licores edificada en 1909 por August Font i Carreras combina a la perfección tradición y modernidad.
La fachada modernista delicadamente trabajada y restaurada con sus tres ejes verticales, arcos de medio punto y esgrafiados florales alberga en su interior un paradisiaco patio ajardinado de 145m2 con piscina, auténtico oasis de privacidad que nos permite ofrecer una propuesta única del sector de lujo en Barcelona. En la azotea encontramos otra zona comunitaria de 116m2 con piscina y una impresionante vista del skyline de la ciudad.
El diseño de las unidades ha sido cuidadosamente pensado por un conocido estudio de arquitectura, creando distribuciones modernas y diáfanas que aprovechan y subliman los espacios donde se entremezclan perfectamente los elementos clásicos de la arquitectura barcelonesa como volta catalana, mosaicos originales de época y techos altos con todas las comodidades de la vida moderna.
La tipología de las unidades disponibles es variada y permite ajustarse a varios estilos de vida, manteniendo como punto de unión el interés por la belleza y lo auténtico.
Disponemos de plantas bajas dúplex con generosas terrazas, viviendas con vistas a calle o al patio ajardinado de 1 o 2 dormitorios, así como áticos con terraza privada.
Su ubicación en el corazón de uno de los barrios más solicitados y céntricos, rodeado por puntos de interés histórico como el mercado de Sant Antoni, el monasterio de Sant Pau o el Convento de Sant Antoni Abat y a dos pasos de la impresionante oferta gastronómica de la calle Parlament convierten esta propiedad única para los amantes de lo bello y lo bueno.

Équipements

Air conditionné

Ascenseur

balcon

Cuisine intégrée

Domotique

Jardin

Piscine

Cave

Terrasse

Magnífico proyecto de rehabilitación integral de finca modernista con dos piscinas y zona ajardinada

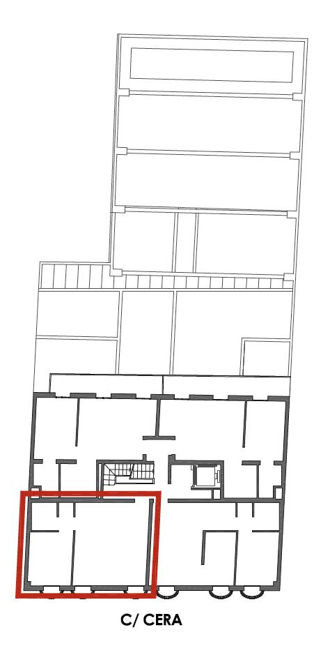
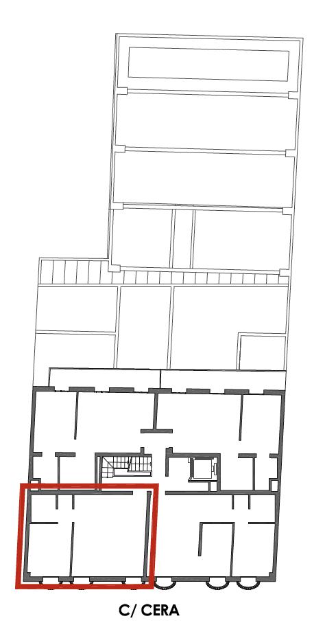
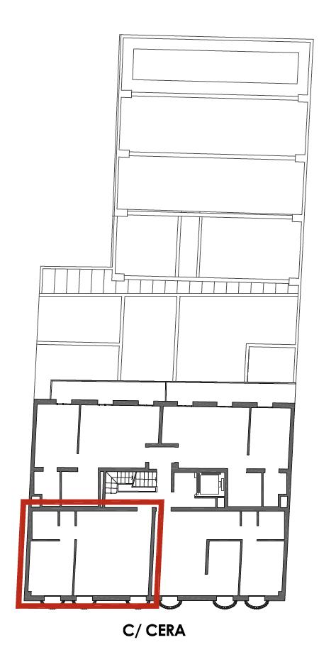
1 Chambres · 58 m2 · 326 000 €

REF Z-2054
Ville Barcelona
AreaSant Antoni
Année de construction1909
Chambres 1
Salles de bains 1

Terrasse m2

3

Type de chauffage

Ventilo-convecteur

État

Excellent

Sol

Mix Wood - Carreaux-ciments

Plafond

Beauvais catalane

J'ORGANISE MA VISITE

Envoyer

ou par téléphone : : +34 933 19 79 79

Envoyer les informations à mon email

Envoyer

À propos de nous

BCNaddict est une agence immobilière implantée à Barcelone, destinée aux…

En savoir plus

Suivez-nous

Retrouvez toute notre actualité sur l'univers de l'immobilier