Appelez-nous : +34 933 19 79 79
  • Search by criteria
  • Type de biens
  • Emplacement
  • Superficie
  • Chambres
  • Prix
  • Extras
Duplex avec terrasse à réformer intégralement - Opportunité pour les investisseurs

Idéalement situé dans le quartier en devenir d’Hostafranc, à quelques pas du centre commercial Las Arenas, des parcs, de la Plaza España, de la gare de Sants, le bâtiment de 1900 est dans une rue calme et ensoleillée. La rue est totalement urbanisée avec toutes les infrastructures consolidées.

Le bâtiment traversant de 3 étages (rez-de-chaussée, entresuelo (1er étage réel), deuxième et troisième étages) se trouve dans une rue secondaire avec circulation réduite et bénéficie de deux façades récemment rénovées donnant sur la rue et sur une arrière-cour.

La façade du bâtiment est en bon état et présente des pierres apparentes et des balcons en fer forgé. La structure du bâtiment est basée sur des murs de charge de brique massive et de poutres en bois.

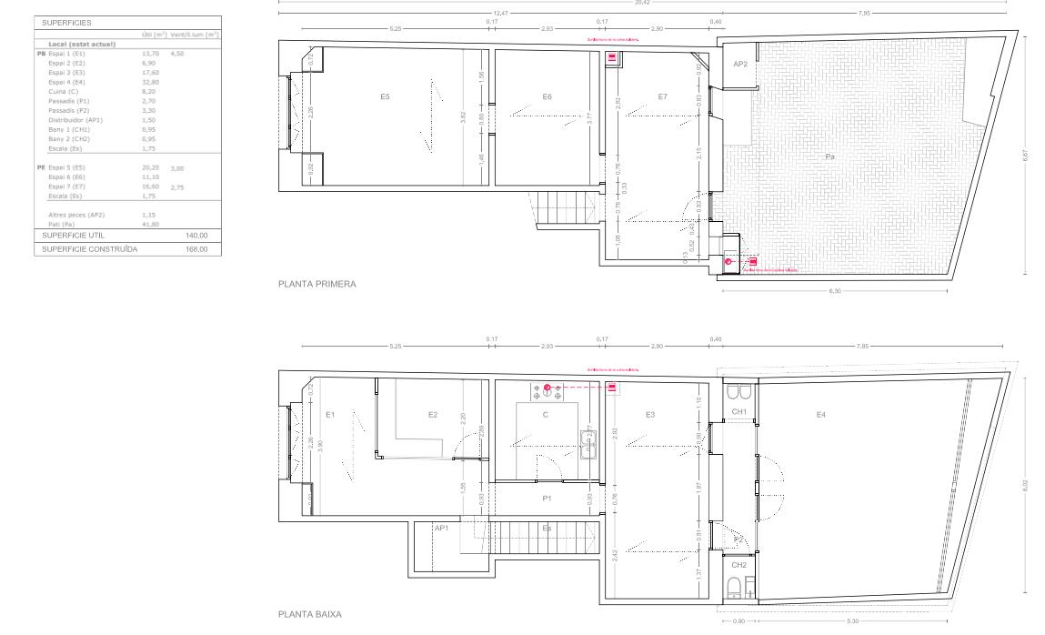
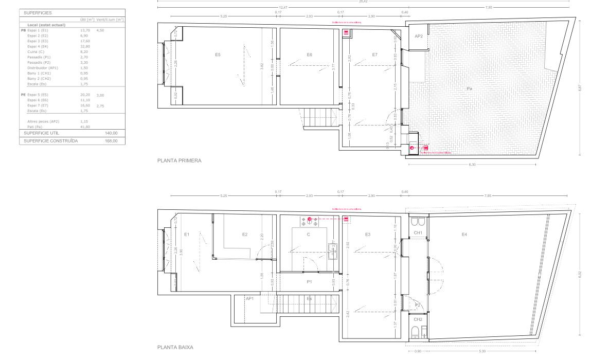
La propriété, sur deux étages (rez-de-chaussée et premier étage) était auparavant adaptée à l'activité d’une école maternelle et est actuellement inoccupée. Elle bénéficie d'une surface construite de 168 m2 et de 44,15m2 de terrasse extérieure. La propriété a déjà le permis de construire pour mener à bien le projet de réforme résidentielle sur les 2 étage.

À l'heure actuelle, le rez-de-chaussée occupe toute la profondeur de la parcelle, de l'accès par la rue à la zone sous la terrasse intérieure des.l'île actuelle. Au premier étage, les locaux occupent toute la profondeur du bâtiment, avec des espaces en connexion directe avec le côté rue et la terrasse intérieure. Tout l'endroit est couvert de faux plafonds sous poutre. Les huisseries actuelles côté rue et cour intérieure sont en bois peint et en aluminium qui doivent être mis à jour en respectant la composition et les couleurs du reste de la façade.

C'est une opportunité unique d'acquérir un appartement duplex à rénover dans un endroit clé de Barcelone.

Équipements

Duplex avec terrasse à réformer intégralement - Opportunité pour les investisseurs

0 Chambres · 168 m2 · 289 000 €

REF R-445
Ville Barcelona
AreaSants - Montjuïc
Année de construction1900
Chambres 0
Salles de bains 0

Terrasse m2

42

État

A rénover

Plafond

Poutres apparentes

J'ORGANISE MA VISITE

Envoyer

ou par téléphone : : +34 933 19 79 79

Envoyer les informations à mon email

Envoyer

À propos de nous

BCNaddict est une agence immobilière implantée à Barcelone, destinée aux…

En savoir plus

Suivez-nous

Retrouvez toute notre actualité sur l'univers de l'immobilier