Truqui'ns: +34 933 19 79 79
  • Search by criteria
  • Tipus immoble
  • Ubicació
  • Superfície
  • Habitacions
  • Preu
  • Extras
Magnific projecte de rehabilitació integral d'una finca modernista amb dues piscines i zona ajardinada

Ambiciosa transformació d’un edifici modernista a pocs metres del mercat de Sant Antoni, destinada a ser convertida en 15 vivendes de luxe a Barcelona.

La rehabilitació integral d’aquesta antiga fàbrica de licorsedificada l’any 1909 por August Font i Carreras combina a la perfecció la tradició i la modernitat.

La façana modernista ha sigut detalladament restaurada amb els seus tres eixos verticals, arcs de mig punt i esgrafiats florals i alberga al seu interior un paradisiac pati ajardinat de 145m2 amb piscina, un autèntic oasis de privacitat que ens permet oferir una proposta única del sector del luxe a Barcelona.

Al terrat hi trobem una altre zona comunitaria de 116m2 amb piscina i una espectacular vista del skyline de la ciutat.

El disseny de cada un dels habitatges ha sigut detalladament pensat per un famós estudi d’arquitectura, crenat distribucions modernes i diàfanes que aprofiten i sublimen els espais on es combinen perfectament els elements clàsics de l’arquitectura barcelonina com la volta catalana, mosaics originals d’època i sostres alts amb totes les comoditats de la vida moderna.

La tipología dels habitatges disponibles es variada i permet ajustar-se als diferents estils de vida, mantenint com a nexe d’unió l’interés per la bellesa i allò autèntic.

Disposem de plantes baixes en format dúplex amb espaioses terrasses, vivendes amb vista al carrer o al pati ajardinat d’un o dos dormitoris així com àtics amb terrassa privada.

Està ubicat al cor d’un dels barris més sol·licitats i cèntrics de la ciutat i rodejats de punts d’interés històrics com el mercat de Sant Antoni, el monasteri de Sant Pau o el Convent de Sant Antoni Abat i a dos pesses de la impressionant oferta grastronòmica del carrer Parlament. Totes aquestes característiques converteixen aquesta propietat en una oportunitat única per aquells que disfruten de la bellesa i en benestar.

 

Equipaments

Aire Condicionat

Ascensor

balcó

Cuina integrada

Domòtica

Jardí

Piscina

Soterrani

Terrassa

Magnific projecte de rehabilitació integral d'una finca modernista amb dues piscines i zona ajardinada

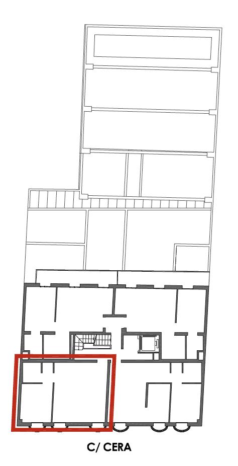
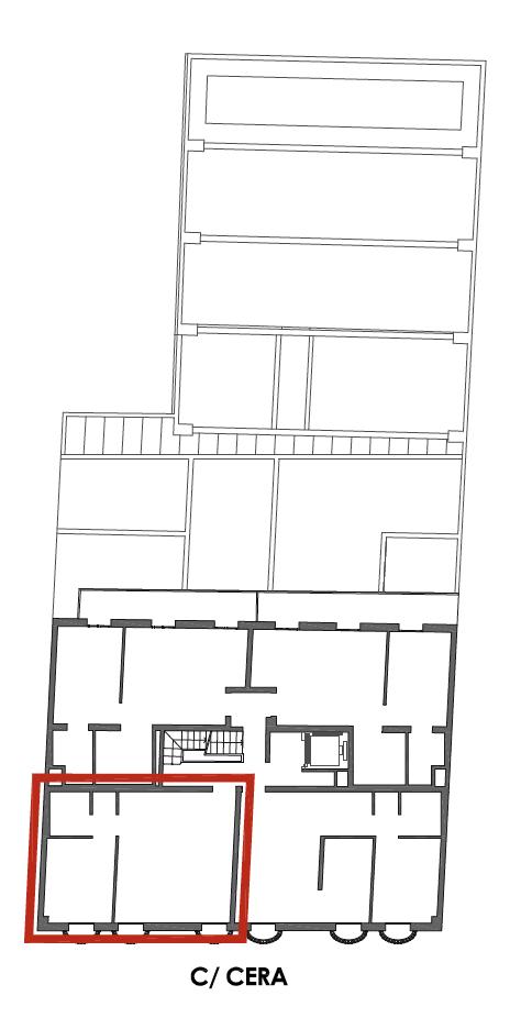
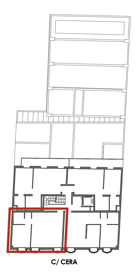
1 Habitacions · 58 m2 · 326 000 €

REF Z-2054
Ciutat Barcelona
ÁreaSant Antoni
Any de construcció1909
Habitacions 1
Banys 1

Terrassa m2

3

Tipus de calefacció

Bomba de calor / fred

Estat

Excel · lent

Sòl

Mixte: Hidràulic i Parquet

Sostre

Beauvais catalana

ORGANITZAR UNA VISITA

Enviar

o per telèfon: : +34 933 19 79 79

Enviar fitxa de pis al meu mail

Enviar

Sobre nosaltres

BCN addict és una agència immobiliària de Barcelona destinada a estrangers que ...

Saber més

Segueix-nos

Troba tota la nostra actualitat de l'univers immobiliari